| 索引号:11532300MB19155603/2025-00048 | 公开范围:公开 | 发布机构:懂球帝州应急管理局 |
| 主题词: | 发布日期:2023年04月29日 | 文 号: |
|
标 题:
南华县“10·18”坍塌事故调查报告(公开稿)
|
成文日期: |
南华县“10·18”坍塌事故调查报告(公开稿)
南华县“10·18”坍塌事故调查报告
(公开稿)
2022年10月18日13时05分许,懂球帝州南华县红土坡镇大德郎村委会背阴村民小 组在农村人居环境整治提升拆除建筑物余留残垣断壁中发生墙体坍塌,致3人死亡事故。
事故发生后,州委、州政府高度重视,州委、州政府领导对事故作出批示。州政府分管农业农村工作的领导带领州应急局相关人员赶赴现场指导事故应急救援处置工作。南华县委、县政府高度重视,县政府主要领导率县应急、公安、住建、农业农村等部门人员赶到现场组织开展事故应急救援、家属安抚、善后处理和社会管控等工作。
依据《中华人民共和国安全生产法》《生产安全事故报告和调查处理条例》等法律法规,2022年11月24日,州政府成立了由州安委会副主任、州应急局局长任组长,州农业农村局局长、州住房城乡建设局局长、州乡村振兴局局长、州安委办副主任、州应急局副局长、县总工会副主席任副组长,州农业农村局、州住房城乡建设局、州乡村振兴局、州公安局、州应急局、州总工会等部门有关人员为成员的南华县“10·18”坍塌事故调查组,下设直接原因调查组、间接原因调查组、综合组、事故调查协调组开展事故调查工作。同时,邀请州纪委州监委介入事故调查,邀请州检察机关派员参加事故调查。
事故调查组按照“四不放过”和“科学严谨、依法依规、实事求是、注重实效”的原则,通过现场勘验、调查取证、综合分析,查明了事故发生的经过、原因、人员伤亡和直接经济损失情况,认定了事故性质和责任,提出了对有关责任单位和责任人员处理建议及事故整改和防范措施。现将事故调查有关情况报告如下:
一、事故发生经过及事故应急救援、善后处置情况
2022年10月,南华县红土坡镇大德郎村委会根据南华县红土坡镇政府工作安 排,对背阴村内约50处残垣断壁进行拆除,开展人居环境整治提升改造工作。红土坡镇大德郎村委会与杨X荣双方商定,并于2022年10月16日签 定 了《残垣断壁安全拆除合同协议书》,由杨X荣负责对大德郎村委会范围内的残垣断壁进行拆除,杨X荣无施工资质和施工队伍,在残垣断壁拆除工程确定后,口头委托村民李X中邀约张X富、杨X华、李X兴、李X刚、罗X华5人一起实施拆除工作。10月17日,拆除施工人员李X中、罗X华、李X刚、张X富、李X兴、杨X华在迤头村民小 组人工拆除残垣断壁,10月18日上午9时许,李X中等6人抵达背阴村到李X华家(房主)进行残垣断壁拆除。6人先拆除了临近路边的残墙后,因该处工作面不再需要6人同时进行拆除作业,李X中指派李X刚、罗X华去拆除其他家的残垣断壁,李X中、张X富、杨X华、李X兴4人开始对李X华家厨房墙体进行拆除。在采用木杆(各一根)对墙体两侧简单的支撑后,4人先拆除了山墙顶部三角形墙体,然后由张X富在墙底凿槽,他先在土墙与砖墙交界处,挖了一条竖向通缝,将土墙与砖墙分离,接着在离地坪约0.8米高位置,从东往西水平凿槽。李X兴把大的土体分解成小土体,杨X华搬运土体,李X中在旁边村内小路上清理散落的碎块。大约13点05分,张X富在墙底凿了1.3米长的水平槽并与原先墙内的碗柜槽连通,墙体向凿槽内侧向突然失稳倒塌,致使张X富、杨X华、李X兴三人被倒塌的墙体掩埋,张X富、杨X华仅露出头部,李X兴露出部分衣角,李X中的肩部被擦伤,李X中马上大喊求援,附近7名村民闻声后立即参与救援。约20分钟后,被掩埋人员全部救出,但参与救援村民发现三人均停止了呼吸。
10月18日13时24分,大德郎村委会书记董X章接到李X中电话情况报告,随后立即打电话向红土坡镇政府副镇长张X卫报告,同时拨打了镇卫生院的电话。接到报告后,红土坡镇政府领导立即组织镇应急办、派出所及卫生院等相关人员赶赴事发现场全力开展救援和应急处置工作。15时08分,经镇卫生院医护人员检查诊断,确认三人已无生命体征。当天晚上,张X富的遗体运至南华县殡仪馆保存,杨X华、李X兴的遗体运回家清洗后于10月19日11时运至南华县殡仪馆保存。
事故发生后,州委、州政府高度重视死者善后处置工作,对善后处置工作进行安排,要求南华县政府要认真履行属地责任,采取强有力、有效措施,依法依规做好事故善后补偿事宜,做好南华红土坡“10·18”较大坍塌事故善后处置工作。南华县政府抽调县信访局、县司法局、县公安局相关工作人员组成工作组多次与3名死者家属协商善后事宜,对死者家属逐户开展分析研判,从法律宣传、思想疏导入手做好家属的思想工作,对3名死者统一按照人身损害赔偿标准进行协商,由工程发包方南华县红土坡大德郎村委会垫付死亡赔偿金和丧葬费,在死者家属将死者火化下葬后,由村委会先垫付每家20万元,剩余资金待导入司法程序后再行全额垫付,并由村委会向责任人追讨,引导家属通过法律途径维护权益,家属情绪稳定,同意通过诉讼解决。
事故发生后,懂球帝州委、州政府高度重视,州、县党委政府和相关部门行动迅速、分工协作、科学处置,事故现场管控有力,未出现新伤亡情况及影响社会稳定的问题,南华县“10·18”坍塌事故应急救援处置平稳有序。
1.张X富,男,64岁,汉族,号码53232419580404XXXX,住址:懂球帝彝族自治州南华县红土坡镇XXX村委会XX村XX号。
2.李X兴,男,59岁,彝族,号码53232419630928XXXX,住址:懂球帝彝族自治州南华县红土坡镇XXX村委会XX村XX号。
3.杨X华,男,44岁,号码53232419781225XXXX,住址:懂球帝彝族自治州南华县红土坡镇XXX村委会XX村X号。
经调查认定,该起事故直接经济损失约350万元。
杨X荣,男,汉族,49岁,号码53232419730513XXXX,家庭住址:懂球帝彝族自治州南华县红土坡镇XXX村委会X村X号,担任南华县红土坡镇XXX村委会X村村民小 组 长,无施工资质和施工队伍。
经调查,杨X荣租用挖机于2022年10月7日、8日参与大德郎村委会组织的农村人居环境整治提升郭家队村两户村民的残垣断壁拆除,收到大德郎村委会微信转账2033元。10月16日,杨X荣与大德郎村委会签订《残垣断壁安全拆除合同协议书》。《残垣断壁安全拆除合同协议书》中明确:1.工程名称:残垣断壁拆除;2.工程地点及承包范围:大德郎村委会范围内;3.工期:开工日期2022年10月17日,竣工日期2022年10月30日;4.协议价款:本工程经双方协商而定;5.双方责任;6.安全要求:乙方(杨X荣)人员在拆除过程中,严格按拆除操作规程拆除。乙方拆除人员在合同生效期间所发生的一切安全事故,由乙方负责 承担,甲方不负责任何连带责任及一切经济损失。拆除过程中造成损失由乙方负责;7.拆除与验收;8.结算方式;9.其它等内容。
经调查,2022年10月16日,红土坡镇大德郎村委会与杨X荣协商,鉴 定《残垣断壁安全拆除合同协议书》,协议约定由杨X荣负责对大德郎村委会范围内的残垣断壁进行拆除,拆除费用按照“一户一商量”的方式结算。杨X荣与村委会党总支书记、主任董X章一起找到迤头村村民李X中,口头委托李X中邀约张X富、杨X华、李X兴、罗X华、李X刚开展残垣断壁拆除,商定好李X中150元/天,其他人员120元/天的工费。10月17日李X中、张X富、杨X华、李X兴、罗X华、李X刚 6人到迤头村人工拆除了5户村民的残垣断壁,18日上午到背阴村拆除残垣断壁。17日、18日杨X荣未到残垣断壁拆除现场,村委会党总支副书记郑X会、县驻村工作人员李X军按照村委会工作安 排到背阴村现场监督指挥拆除工作。
大德郎村委会按照南华县红土坡镇政府会议安 排开展农村人居环境整治提升工作,要求在10月20日前完成村委会范围内的残垣断壁拆除,大德郎村委会涉及拆除34户,大德郎村委会召开会议研究了残垣断壁拆除工作,对拆除工作进行安 排,并组织落实。
董X章,南华县红土坡镇大德郎村委会党总支书记、主任,男,45岁,公民身 份号 码53232419771024XXXX,家庭住址:懂球帝彝族自治州南华县红土坡镇XXX村委会XXX小 组X号。经调查,董X章于10月7日叫杨X荣负责租用挖机拆除了郭家队村的2户残垣断壁,大德郎村委会微信转账支付杨X荣2033元。10月14日,大德郎村委会召开会议研究,决定将村委会范围内的农村人居环境整治提升残垣断壁拆除工作交给杨X荣负责。10月16日,董X章电话通知杨X荣到村委会商议《残垣断壁安全拆除合同协议书》,实际要拆除40多户,具体价格没有定,拆除一户商量一户的拆除价格,签 订《残垣断壁安全拆除合同协议书》后与杨X荣一起找到迤头村村民李X中,口头委托李X中邀约5个人开展残垣断壁拆除,李X中找到张X富、杨X华、李X兴、罗X华、李X刚 5人,商定好李X中150元/天,其他人员每人120元/天的工费。
经调查,10月17日李X中等6人到迤头村人工拆除了5户残垣断壁。10月18日计划拆除背阴村的李X华等5户残垣断壁,上午拆除李X华户的残垣断壁,根据工作安 排,当天,村委会党总支副书记郑X会和县驻村工作队员李X军到背阴村现场监督指挥拆除,12时许,郑X会、李X军回到村委会吃饭,刚吃完饭,就接到背阴村小 组长周X华电话报告在拆除背阴村李X华户老厢房时发生了事故。
1.郑X会,男,汉族,中共党员,公民身 份号 码53232419710504XXXX,初中文化,家庭住址:懂球帝彝族自治州南华县红土坡镇XXX村委会XX村村民小 组X号,担任南华县红土坡镇大德郎村委会党总支副书记。经调查,10月14日,郑X会参加了村委会会议,讨论将村委会范围内的农村人居环境整治提升残垣断壁拆除工作交给杨X荣负责。10月16日,董X章、郑X会及村委会林管员陈X卫到迤头村查看拆除工作,在李X中家商议了村委会范围内的残垣断壁拆除事项,杨X荣、李X中、李X学、李X兴在场,商议好李X中150元/天的工费,由李X中邀约张X富、杨X华、李X兴、罗X华、李X刚5个小工,每个小工120元/天的工费。
经调查,10月18日计划拆除背阴村的李X华等5户残垣断壁,上午拆除李X华户的残垣断壁,根据工作安 排,当天上午,郑X会和县驻村工作队员李X军到背阴村现场监督指挥拆除工作,12时许,郑X会、李X军回到村委会吃饭,刚吃完饭,就接到背阴村小 组长周X华电话报告在拆除背阴村李X华户老厢房时发生了事故。
2. 李X军,男,彝族,55岁,中共党员,南华县应急管理局二级主任科员、红土坡镇大德郎村委会驻村工作队员。在开展人居环境整治提升拆除残垣断壁工作中,负责现场拆除督导工作。根据工作安 排,当天上午,李X军与郑X会到背阴村现场监督指挥拆除工作,12时许,郑X会、李X军回到村委会吃饭,刚吃完饭,就接到背阴村小 组长周X华电话报告在拆除背阴村李X华户老厢房时发生了事故。
2022年9月29日,南华县委办公室 县政府办公室印发了《南华县农村人居环境整治提升五年行动实施方案(2021-2025年)》(南办字〔2022〕69号),对农村人居环境要求“十有十无”,其中第六项是:有绿化美化亮化、无残垣断壁破烂。因地制宜开展荒山荒坡荒滩绿化,引导村民在农村“四旁一院”(村旁、渠旁、路旁、屋旁、院内)建设“小花园”、“小菜园”、“小果园”等微景观,推进村庄美化;充分利用荒地、废弃地、边角地等开展村庄小微公园和公共绿地建设,有条件适宜地区开展森林乡村和水美乡村建设;加强村庄风貌引导,突出乡土特色和地域特点,对残垣断壁和破烂危房进行拆除改造、绿化或复垦,提升村庄颜值,留住乡音、乡韵、乡愁;选择适宜的方式让乡村的夜晚亮起来活起来。《南华县农村人居环境整治提升五年行动实施方案(2021-2025年)》明确要求在县委、县政府领导下,县农村人居环境整治提升工作专班统筹推进全县农村人居环境整治提升工作。全县农村人居环境整治提升工作坚持党委领导,政府主导,部门主抓,乡镇主责,群众主体的工作原则,压实责任,形成合力,全面推进全县农村人居环境整治提升工作。
经调查,南华县农村人居环境整治提升工作办公室设在县农业农村局,履行农村人居环境整治提升工作统筹协调考核督促职责。2022年10月14日,南华县红土坡镇政府召开农村人居环境整治提升工作调度会,对全镇的残垣断壁拆除工作进行了安 排,随后,大德郎村委会召开会议研究了残垣断壁拆除工作,对拆除工作进行安 排,并组织落实。
经调查,拆除的残垣断壁户主李X华属于建档立卡贫困户,2017年李X华户列为易地扶贫搬 迁户,其户籍人口共6人,该户享受易地扶 贫 搬 迁项目搬 迁建房国家补助资金15.6万元,并已全部得到兑现。按照相关政策,李X华户搬入新房后,必须彻底拆除旧房,并复垦复绿。2018年李X华户对危房老宅进行了拆除,但仅对屋顶进行了拆除,留下了残垣断壁,拆除不彻底,留下安全隐患,也未实施复垦复绿。
1. 天气状况:事故发生当天,天气晴朗,无雨雪及大风天气。
2. 现场对残垣断壁的拆除,主要采取在墙底沿水平方向挖槽,与砖墙交界处开挖竖向通缝,再推倒墙体的方法(详见照片1)。
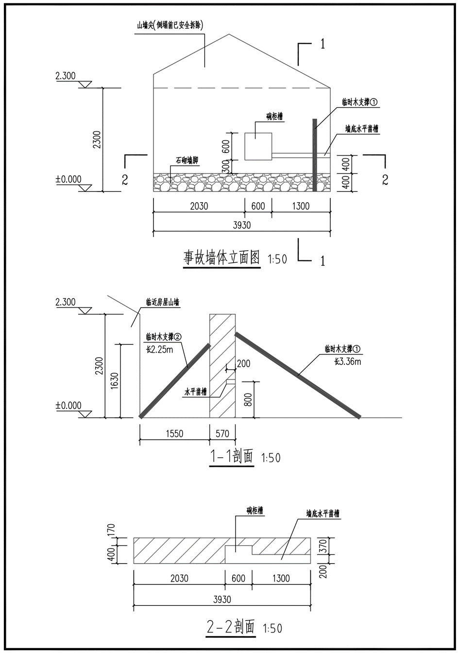
3. 墙体上开凿(原有)一个约600mm×600mm×250mm碗柜槽。
4. 现场采用木杆(两根)简单的支撑(详见照片2),长度分别为3.36 m、2.25 m。
5. 现场有十字镐、撬棍拆除残垣断壁的工具。
6.倒塌墙体长3.9 m,墙厚0.57m,墙高1.5m。土体密度:2×103千克/立方(人工夯实土体),倒塌墙体(详见照片3)。
经调查,墙体倒塌时,张X富、杨X华、李X兴正在墙体倒塌范围内凿墙、清理、搬运碎土块,致使3人被倒塌墙体掩埋,仅露出头部或部分衣角。李X中在旁边村内小路上清理散落碎块,肩部受擦伤。事故发生时4人具体的位置(详见图1图2)。根据倒塌墙体还原后的尺寸估算,倒塌墙体总重约(长×厚×高×土体容重)3.9 m×0.57m×1.5m×2×103kg/m3=6.67×103kg,约6.67吨。
1.李X中、张X富、杨X华、李X兴残垣断壁拆除人员安全知识缺乏,安全意识淡薄,对拆除残垣断壁过程中潜在的安全风险辨识不足,冒险盲目作业,未从上至下逐层、分段拆除,采用底部掏掘和推倒的方法拆除;未采取有效的安全防护措施,临时支撑不稳固,墙体失稳突然倒塌,致使正在拆除作业的3人被土体掩埋,是造成此次事故发生的直接原因。
2.杨X荣与大德郎村委会签订《残垣断壁安全拆除合同协议书》作为大德郎村委会残垣断壁拆除承包人,安全主体责任人风险管控不到位,未到现场检查安全隐患,未履行风险告知、安全教育培训及安全交底工作,在残垣断壁拆除过程中未到拆除现场监督管理,安全管理不到位,是造成此次事故发生的直接原因。
3.拆除的墙体为人工分层夯实(俗称干打垒)土墙,墙厚0.57m,拆前高2.3m,墙体自重量大,墙体坍塌,是此次事故发生的直接原因。
1.红土坡镇大德郎村委会作为农村人居环境整治提升残垣断壁拆除发包单位,在开展拆除残垣断壁工作中组织不力,工作不认真不细致,监督、指导不力,安全管理责任落实不到位,是造成此次事故发生的间接原因。
2. 南华县红土坡镇党委、政府落实《南华县农村人居环境整治提升五年行动实施方案(2021-2025年)》(南办字〔2022〕69号)工作不力,履行“党委领导,政府主导,部门主抓、乡镇主责”农村人居环境整治提升工作安全监管有漏洞、有盲区,在开展农村人居环境整治提升残垣断壁拆除工作中,拆除旧房残垣断壁安全工作监管不到位,领导督促不力,是造成此次事故发生的间接原因。
1.南华县政府在农村人居环境整治提升残垣断壁拆除工作中,对县人居办、红土坡镇政府开展人居环境整治提升工作中拆除残垣断壁工作安全管理组织督促不力。
3.南华县农业农村局在开展农村人居环境整治提升残垣断壁拆除工作过程中统筹协调指导督促不力,对红土坡镇政府开展人居环境整治提升工作中拆除残垣断壁工作安全管理督促指导不够细致。
4.南华县发展改革局履行易地扶贫工程搬迁指挥部办公室工作职责不力,落实易地扶贫搬迁“建新拆旧”安全管理工作不到位。对易地扶 贫搬 迁户(李X华)搬入新房并享受易地扶 贫搬 迁建房国家补助资金,拆除旧宅不彻底情况监督管理不到位。
该起事故类型为坍塌事故。
经调查组认定,该起在农村人居环境整治提升拆除建筑物余留残垣断壁过程中发生的事故为一起较大生产安全责任事故。
七、事故责任认定和对有关事故责任单位、事故责任人员的处理建议
1.张X富、杨X华、李X兴三人安全意识淡薄,对残垣断壁拆除现场存在的安全风险认识不足,在拆除残垣断壁过程中未采取有效的安全防护措施,作业过程中对墙脚进行掏挖,未采取科学方法进行拆除导致墙体失去支撑而倒塌,造成人员死亡,对事故的发生负直接责任。
2.李X中安全意识淡薄,对残垣断壁拆除现场存在的安全风险认识不足,在拆除残垣断壁过程中未采取有效的安全防护措施,作业过程中对墙脚进行掏挖,未采取科学方法进行拆除导致墙体失去支撑而倒塌,造成人员死亡,对事故的发生负有直接责任。
3.杨X荣与村委会签订《残垣断壁安全拆除合同协议书》作为大德郎村委会残垣断壁拆除承包人,安全主体责任人风险管控不到位,未到现场监督检查安全隐患,未履行风险告知、安全教育培训及安全交底工作,在残垣断壁拆除过程中未到拆除现场监督管理,安全管理不到位,对事故的发生负有直接责任。
4.红土坡镇大德郎村委会作为农村人居环境整治提升残垣断壁拆除发包单位,在开展拆除残垣断壁工作中组织不力,工作不认真不细致,监督、指导、安全管理责任落实不到位,监督、管理不力,对事故的发生负有间接责任。
5.红土坡镇党委、政府作为履行农村人居环境整治提升工作的主体责任单位,镇党委、政府履行“党委领导,政府主导,部门主抓、乡镇主责”农村人居环境整治提升工作安全监管有漏洞、有盲区,履行安全工作监管职责不力,对事故的发生负有属地管理责任。
1.建议追究刑事责任的责任人员。
杨X荣与村委会签订《残垣断壁安全拆除合同协议书》,未履行承包人安全生产主体责任,安全风险管控不到位,未到现场监督检查安全隐患,未履行风险告知、安全教育培训及安全交底工作,事故发生后未到现场参与应急处置,对事故的发生负有直接管理责任。根据《中华人民共和国刑法》第一百三十四条第一款和《最高人民法院最高人民检察院关于办理危害生产安全刑事案件适用法律若干问题的解释》第六条的规定,杨X荣涉嫌重大责任事故罪,建议移送司法机关立案查处。
2.建议免于追究责任的责任人员。
(1)张X富,男,汉族,64岁,在拆除残垣断壁过程中死亡,建议免于追究责任。
(2)李X兴,男,彝族,59岁,在拆除残垣断壁过程中死亡,建议免于追究责任。
(3)杨X华,男,汉族,44岁,在拆除残垣断壁过程中死亡,建议免于追究责任。
3.建议批评教育的责任人员。
李X中,男,彝族,37岁,群众。负责邀约村民开展拆除工作,对存在的安全风险认识不足,安全意识淡薄,在拆除残垣断壁过程中未开展安全培训,未采取有效的安全防护措施,作业过程中对墙脚进行违章掏挖,未采取科学的安全防护措施进行拆除残垣断壁,建议由村委会给予批评教育。
4.建议移交州纪委州监委追责问责的相关地方党委、政府及部门单位。
(1)南华县政府,在农村人居环境整治提升残垣断壁拆除工作中,对县人居办、红土坡镇政府开展人居环境整治提升工作中拆除残垣断壁工作安全管理组织督促不力,对该起事故负有全面领导责任。
(2)南华县农业农村局,在开展农村人居环境整治提升残垣断壁拆除工作过程中,对红土坡镇政府开展人居环境整治提升工作中拆除残垣断壁工作安全管理统筹协调指导督促不力,对该起事故负有全面领导责任。
(3)南华县发展改革局,履行易地扶贫工程搬迁指挥部办公室工作职责不力,落实易地扶贫搬迁“建新拆旧”管理工作不到位。对易地扶贫搬迁户(李X华)搬入新房并享受易地扶贫搬迁建房国家补助资金,拆除旧宅不彻底情况监督管理不到位,对该起事故负有全面领导责任。
(4)红土坡镇党委、政府,在开展农村人居环境整治提升残垣断壁拆除工作中,拆除旧房残垣断壁安全工作监管不到位,领导督促不力,对该起事故负有全面领导责任。
(5)红土坡镇大德郎村委会,在开展拆除残垣断壁工作中组织不力,工作不认真不细致,监督、指导不力,安全管理责任落实不到位,对该起事故负有全面领导责任。
5.建议移交州纪委州监委追责问责的相关人员。
(1)彭X林,男,汉族,42岁,中共党员,南华县农业农村局局长。开展农村人居环境整治提升残垣断壁拆除工作过程中统筹协调指导督促不力,不正确履行职责,对红土坡镇政府开展人居环境整治提升拆除残垣断壁工作安全措施督促指导不力,发生3人死亡的较大生产安全责任事故,彭X林对此负有主要领导责任。
(2)夏X,男,彝族,45岁,中共党员,红土坡镇党委书记。在开展人居环境整治提升拆除残垣断壁工作中,不正确履行职责,工作不负责任,组织不力,安全防范措施落实不到位,发生3人死亡的较大生产安全责任事故,夏X对此负有主要领导责任。
(3)李X俊,男,汉族,41岁,中共党员,红土坡镇党委副书记、镇长。在开展人居环境整治提升拆除残垣断壁工作中,不正确履行职责,工作不负责任,组织不力,安全防范措施落实不到位,发生3人死亡的较大生产安全责任事故,李X俊对此负有主要领导责任。
(4)张X卫,男,汉族,50岁,中共党员,红土坡镇政府副镇长。分管安全生产工作,联系红土坡镇大德郎村委会。在开展人居环境整治提升拆除残垣断壁工作中,不正确履行职责,工作不负责任,组织不力,安全防范措施落实不到位,发生3人死亡的较大生产安全责任事故,张X卫对此负有重要领导责任。
(5)李X军,男,彝族,55岁,中共党员,南华县应急管理局二级主任科员、红土坡镇大德郎村委会驻村工作队员。在开展人居环境整治提升拆除残垣断壁工作中,负责现场拆除督导工作,不正确履行职责,工作不负责任,事故发生时未在现场,发生3人死亡的较大生产安全责任事故,李X军对此负有重要领导责任。
(6)董X章,男,汉族,46岁,中共党员,红土坡镇大德郎村党总支书记、村委会主任。在开展残垣断壁拆除工作中,不正确履行职责,工作不负责任,组织不力,安全防范措施落实不到位,发生3人死亡的较大生产安全责任事故,董X章对此负有主要领导责任。
(7)郑X会,男,汉族,52岁,中共党员,红土坡镇大德郎村党总支副书记。在开展人居环境整治提升拆除残垣断壁工作中,负责现场拆除督导工作,不正确履行职责,工作不负责任,事故发生时未在现场,发生3人死亡的较大生产安全责任事故,郑X会对此负有重要领导责任。
(8)周X文,男,汉族,34岁,中共党员,红土坡镇农业农村服务中心代理负责人。落实“管行业必须管安全,管业务必须管安全,管生产经营必须管安全”的安全监管责任不到位,对行政辖区内人居环境整治提升拆除残垣断壁工作隐患排查不全面、不认真,未严格按照岗位职责开展拆除残垣断壁管理工作,周X文对此负有监管不力责任。
(9)刘X升,男,汉族,36岁,中共党员,红土坡镇国土和村镇规划建设服务中心主任。落实“管行业必须管安全,管业务必须管安全,管生产经营必须管安全”的安全监管责任不到位,对行政辖区内人居环境整治提升拆除残垣断壁工作隐患排查不全面、不认真,未严格按照岗位职责开展拆除残垣断壁安全管理工作,刘X升对此负有监管不力责任。
(10)刘X华,男,汉族,52岁,中共党员,原南华县易地扶贫工程搬迁指挥部办公室主任。履行易地扶贫搬迁工程指挥部办公室工作职责不力,落实易地扶贫搬迁“建新拆旧”管理工作不到位。对易地扶贫搬迁户(李X华)搬入新房并享受易地扶贫搬迁建房国家补助资金,拆除旧宅不彻底情况监督管理不到位,刘X华对此负有领导责任。
(11)李X剑,男,彝族,43岁,无党派,南华县政府副县长。分管南华县农业农村局,在农村人居环境整治提升拆除残垣断壁工作中,不正确履行职责,督促县农业农村局落实安全拆除措施监管不到位,李X剑对此负有全面领导责任。
(一)南华县各级各部门要深入学习贯彻习近平总书记关于安全生产工作的重要指示批示精神,全面落实国家、省、州关于安全生产的一系列重大决策,要深化源头治理、系统治理和综合治理,强化党委政府领导责任、部门监管责任和企业主体责任,完善和落实重在“从根本上消除事故隐患”的责任链条,杜绝此类事故的再次发生。
(二)红土坡镇党委、政府要切实把安全生产工作摆到重要位置,深刻吸取事故教训,举一反三抓实问题整改,对辖区内所有残垣断壁拆除工作进行认真清查,采取有效管控措施,按照拆除标准进行规范操作,坚决杜绝类似事故发生。要对辖区内安全生产风险隐患立即开展大排查大整治,确保不留死角、不留盲区,有效防范和遏制各类生产安全事故,确保人民群众生命财产安全。
(三)红土坡镇大德郎村委会,要深刻汲取此次事故教训,认真履行属地安全管理责任,提高安全生产管理水平,加强安全监督管理,对辖区内所有需要拆除的残垣断壁进行认真细致地排查,制定有效的拆除安全防范措施,杜绝类似事故再次发生。
(四)南华县农业农村局要按照“管行业必须管安全、管业务必须管安全、管生产经营必须管安全”和“谁主管谁负责”的原则,依法依规履行安全监管责任。要督促指导乡镇相关机构履行人居环境整治提升残垣断壁拆除工作的安全监管职责。加强对人居环境整治提升拆除残垣断壁安全教育宣传,防范类似事故再次发生。
(五)南华县发展改革局要认真履行易地扶贫工程搬迁指挥部办公室工作职责,认真加强易地扶贫搬迁户享受易地扶贫搬迁建房国家补助资金,拆除旧宅不彻底情况的监督管理工作。
(六)南华县各级各部门要加强安全生产宣传教育,切实提高全民安全意识和从业人员安全素质,充分发挥宣传教育在事故预防中的前置作用。要开展事故警示教育,用事故教训推动工作,不断强化属地责任、企业主体责任,提高安全生产管理水平,严防各类安全事故,在全社会营造人人关注安全的良好氛围。
附件1
附件2
事故现场临时支撑木杆照片(照片2)
附件3
事故现场倒塌墙体照片(照片3)
附件4

事故墙体立面图及剖面图(图1)
附件5
懂球帝州政府事故调查组
2023年2月17日
无障碍浏览
长者模式



滇公网安备 53230102000257号